Современная баня с барбекю зоной. Изготовим и установим в Московской и Тверской области.
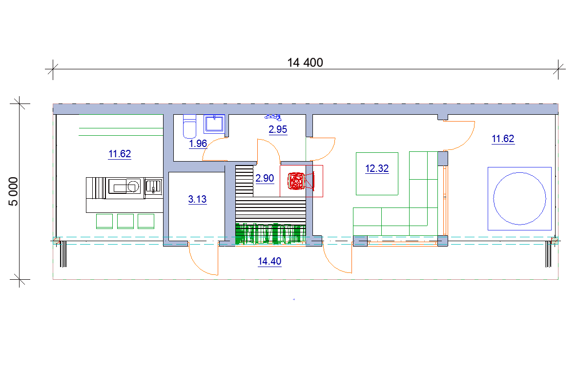
Общая площадь 70 кв.м.
1. Каркас из сухого строганного бруса хвойных пород, обработанный огнебиозащитой.
2. Утепление стен, пола и кровли 190 мм.
3. Утепление межкомнатных перегородок 90 мм.
4. Кровля - металлопрофиль.
5. Отделка - планкен лиственница, имитация бруса, керамическая плитка и вагонка липа в парной.
6. Окна и входная дверь - ПВХ MELKE Evolution 70 мм, стеклопакет тройной энергосберегающий. В парной стеклопакет закаленный. Безрамное остекление террасы и зоны барбекю.
7. Электрика - Щит с автоматами, светильники, розетки и выключатели.
8. Полы - керамическая плитка и палубная доска лиственница.
9. Водоснабжение и канализация по бане с выводами для дальнейшего самостоятельного подключения.
10. Печь дровянная каменка.
11. Комплекс барбекю с вытяжкой.
Доставка и фундамент рассчитываются индивидуально!



